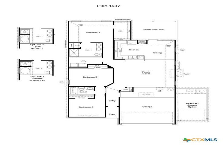
Property Description: Introducing the Roosevelt floorplan at Turnbo Ranch Traditions in Killeen, Texas, where every square foot is put-to-use with sophistication and comfort. You'll be calling the approximately 1,605 square foot, single-story, 2car garage option, and covered patio your new home. The 3-bedroom, 2-bathroom floorplan is perfect for you with the open concept living area. The kitchen, dining area, and living area creates a spacious environment. You'll find flat panel birch cabinetry, granite countertops, and stainless-steel appliances in the kitchen. The secondary bedrooms are cozy and carpeted, with plenty of closet space and easy access to separate bathroom. The primary bedroom will make you feel right at home, with an attached primary bathroom with the option for tub and linen or tub and shower. With several options, this floorplan allows you to truly customize your bathroom experience. Each of our D.R. Horton homes has smart home technology built in. With the smart home technology, you'll never be far from home. Come say hello and check out the Roosevelt floorplan today.