4
2
1877
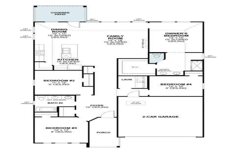
Property Description: Built by MI Homes, this exceptional new construction home located at 3612 Birch Lane in Argyle offers 4 bedrooms, 2 bathrooms, and an open-concept design perfect for both daily life and entertaining. This single—story home also includes sloped ceilings, quartz countertops, a covered patio, and a 2-car garage. The open-concept living area creates an inviting atmosphere where families can gather, and guests can feel welcome.   The owner's bedroom provides ample space and privacy with its en-suite bathroom and huge walk-in closet, while the additional 3 bedrooms offer flexibility for family needs, home offices, or guest accommodations. The home's design emphasizes both comfort and practicality, making it an ideal choice for those seeking a well-built new construction home. This desirable Argyle setting provides access to quality parks and recreational opportunities, making this an excellent choice for those who value both indoor comfort and outdoor accessibility. Schedule your visit today!