4
3
2411
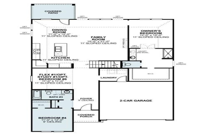
Property Description: Built by MI Homes. Discover this stunning new construction home at 13116 Sandstone Street in Providence Village, Texas, offering comfort, style, and thoughtful design. Key features include 4 bedrooms with the owner's bedroom on the main level, 3 full bathrooms, and a 2-car front-load garage. This home offers a welcoming layout that blends functionality with comfort. The open main floor connects the kitchen, dining, and family room for easy living and relaxed entertaining. Natural light enhances the shared spaces and creates a warm environment for daily routines. The owner's bedroom is privately located on the main level, providing convenience and separation from the secondary bedrooms. You’ll love its ensuite bathroom and walk-in closet! Upstairs bedrooms add flexibility for family, guests, or workspace needs, while three full bathrooms support comfort for everyone. Schedule your visit today!