5
2
1812
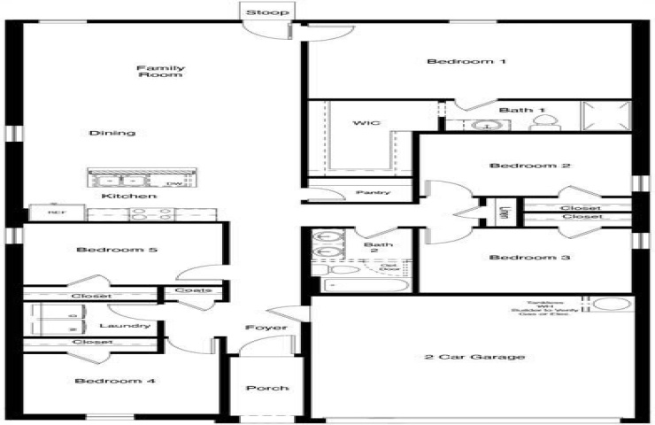
Property Description: D.R. Horton America's Builder since 2002 is excited to serve as your new home builder in Lonestar at Liberty Trails, a fabulous unique master planned community in Justin and Northwest ISD! The single-story Carson Floorplan, Elevation X, with an estimated Spring completion, offers 5 bedrooms, 2 bathrooms, and a 2-car garage, delivering a spacious and functional layout designed for everyday living. The open-concept design seamlessly connects the family room, dining area, and contemporary kitchen, creating an inviting central gathering space. The kitchen features quartz countertops, 36” upper cabinets with hardware, stainless steel appliances, a electric range, stainless steel sink, center island, and a walk-in pantry for added storage and convenience. The private primary suite is thoughtfully positioned and includes an en-suite bath with a dual quartz vanity, 5-foot oversized shower, and walk-in closet. Four secondary bedrooms are well-sized and share a full bathroom with a quartz vanity top, offering flexibility for family, guests, or a home office. Luxury vinyl plank flooring extends through the main living areas and wet zones for durability and easy maintenance. Additional features include energy-efficient construction, America’s Smart Home Technology, and a tank water heater. Future Community Amenities to include: Club House, Dog Park, Fishing Pond, Pickleball, Playground, Pool, Splash Pad, Walking-Nature Trails and Sand Volleyball. Situated conveniently near Highway 114 and Highway 287, Lonestar at Liberty Trails provides convenient access to key roads, making it ideal for commuting and exploring the surrounding areas.