4
3
2811
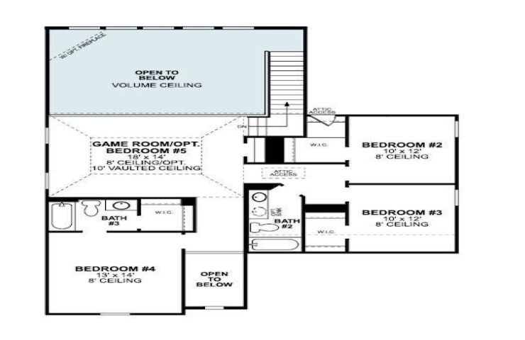
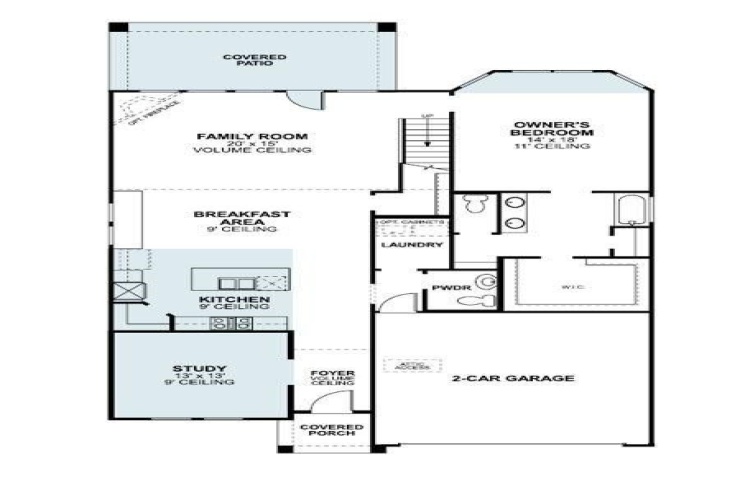
Property Description: Built by MI Homes. Discover this stunning new construction home at 1328 Sherlynn Court in Celina, Texas, built by MI Homes. This thoughtfully designed 4-bedroom, 3.5-bathroom home offers an open-concept living space, with the owner's bedroom conveniently located on the main floor. Key Features: Study off the foyer Gourmet kitchen Extended covered patio Owner's bedroom bay window Second-floor game room with a vaulted ceiling The home's open-concept design creates seamless flow between living areas, making it ideal for both daily life and hosting guests. The main-floor owner's bedroom provides convenience and privacy, while the additional bedrooms offer flexibility for family, guests, or home office space. This home is situated in a desirable Celina neighborhood known for its family-friendly atmosphere. The area offers excellent proximity to local parks, providing outdoor recreation opportunities right at your doorstep. Residents appreciate the thoughtful community planning and quality design standards that define this growing area of Celina. The quality of design is evident throughout this MI Homes construction, featuring careful attention to detail and contemporary finishes. With its combination of functional layout, desirable location, and new construction benefits, this home presents an excellent opportunity for buyers seeking modern living in Celina's thriving community. Schedule a visit today!