For Sale
$964,911
629 Limerick Lane
Celina, Texas 75009
Listing ID 21181109
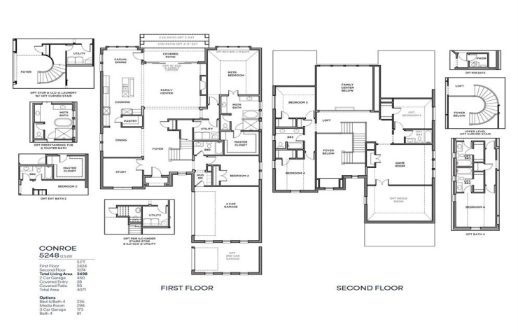
5
5
4031
Phone Number:
512-256-9091
Email:
Info@BuildersClearinghouse.com
No Image
www.buildersclearinghouse.com