3
2
2219
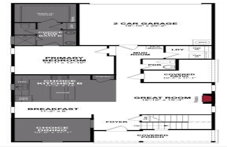
Property Description: Welcome home to the Conroe—a beautifully designed Beazer Home where style meets comfort. This 3 bedroom, 2.5 bathroom home features a study, fireplace, loft, and a covered porch. The great room offers a warm welcome to visitors, while the thoughtfully designed layout ensures space for every part of your life. Designed with the latest trends in mind, this home showcases quartz countertops, rich hardwood flooring, and striking 42-inch linen cabinetry. Every Beazer home is certified by the Department of Energy as a Zero Energy Ready Home, designed for superior energy efficiency and healthier indoor air quality with Indoor airPLUS. This solar-ready home is built with durable 2x6 exterior walls and spray foam insulation. Treeline in Justin, TX is a Hillwood community where you can truly unplug and reconnect—with nature. Thoughtfully designed with a nature-centric vision, Treeline offers a lifestyle rooted in outdoor exploration and community connection. Here, residents enjoy treehouse-inspired parks, community orchards, food truck parks, and multiple amenity centers, all activated by a vibrant lifestyle program that brings people together in meaningful ways. Whether it’s a quiet walk under the trees or a lively weekend gathering, Treeline invites you to live in rhythm with nature. Families will appreciate being part of the award-winning Northwest ISD, making Treeline a place where both hearts and minds can grow. Estimated completion: May 2026 Days on market reflect the start of new home construction