4
2
2370
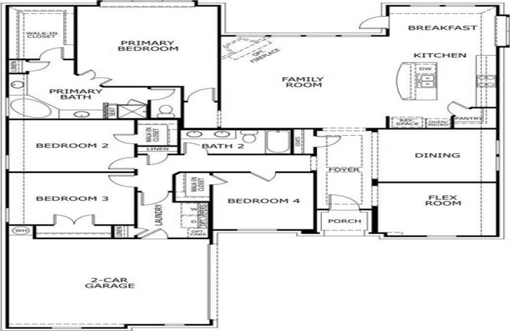
Property Description: MLS# 21181881 - Built by Risewell Homes - May 2026 completion! ~ This well-designed single-story home offers four bedrooms, two full bathrooms, a private study, and a two-car garage, creating a functional layout ideal for everyday living. The open-concept design centers around a spacious family room that flows seamlessly into the kitchen and breakfast nook, making it perfect for gathering and entertaining. The kitchen provides ample counter space, a central island, and convenient access to the dining area. The primary suite is thoughtfully positioned for privacy and features an en-suite bath with a walk-in closet. Three additional bedrooms are grouped together with a full bathroom, while the dedicated study near the front of the home replaces the flex space to provide a quiet work-from-home or hobby area. With efficient use of space and a comfortable single-story layout, this home is both practical and inviting.