5
4
3922
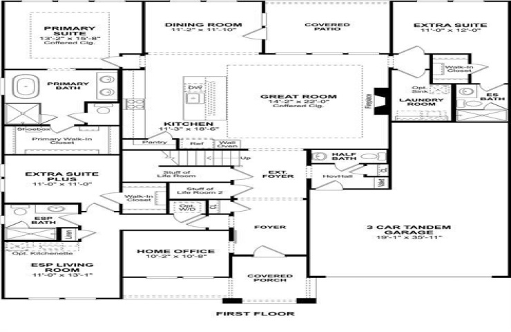
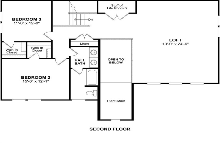
Property Description: Located in Arlington ISD part of the Sterling Greene community, the neighborhood offers excellent opportunities in education and an added sense of comfort with a gated entrance. This stunning 2-story home provides a comfortable open floorplan with an Extra Suite Plus, ideal for extended stay guests. A convenient home office at the foyer is perfect for work at home. The kitchen features a spacious island and overlooks the well-lit great room. A cozy dining area allows access to the covered patio, great for outdoor living. In from the garage, a HovHall and laundry room keep your home tidy. The primary suite with private bath and spacious walk-in closet. A versatile loft and 2 additional bedrooms with hall bath allow for comfort for all.