4
3
2732
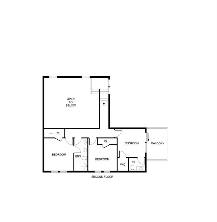
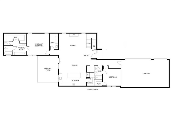
Property Description: Introducing the newest statement home from Modish Custom Homes, thoughtfully designed for buyers who expect more than builder grade finishes and ordinary layouts! This is not just new construction, it is a carefully crafted home where modern architecture meets everyday livability and elevated detail at every turn. New construction by Modish Custom Homes offering modern design, functional layout and high quality upgrades throughout. This 4 bedroom, 3.5 bath home delivers 2,732 sqft of open concept living with an estimated completion of April 2026. Notable features and upgrades include: • Striking 4 foot wide metal and glass pivot front door • 8 foot solid core interior doors throughout • Electric linear fireplace in main living area • Open concept kitchen with an extended island • Walk in pantry plus dedicated butler’s pantry • ZLINE appliance package • Private primary suite on main level • Guest Wing located on main level that's ideal for guests or multigenerational living • Study-flex space with open overlook • Secret hidden room • Oversized 3 car garage • EVSE interface for Level 2 charging • Tankless water heater with recirculation pump • Extensive LED lighting elements throughout • Oversized covered patio for indoor outdoor living • Private balcony • Bidet ready outlets behind toilets • Deep lot with expansive backyard potential. Early opportunities available. Seller’s preferred lender is offering a 1% lender credit to go towards buyer’s closing costs or an interest rate buy down. Secure this home early and take advantage of pre completion momentum while selections and strategy still matter! Built with intention, positioned for impact and designed to stand apart, this is your opportunity to own a Modish Custom Homes original before it ever officially hits full market presence!