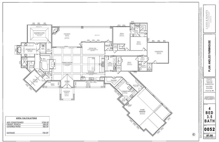
4
3
3700
Property Description: Our Model in Gunter is open this weekend and week if your brave enough to come out, call for times and appointment. Come build your dream custom home with local custom home builder Scott Post Homes in Van Alstyne! Durning Estates includes 13 luxury acreage homesites available on a single concrete road with two cul-de-sacs. This 3700 SF open floor plan boasts 4 bedrooms, 3.5 baths, a game room, office, and three car garage. The master bath features a vaulted ceiling, separate vanities with direct access to the laundry room from the master closet. As you walk into this home, you’re greeted by a large foyer that leads to the open concept living area with large windows and 13’ ceilings. The high ceilings continue all through the kitchen area which features an oversized island and open area for a dining table. Shown in the floor plan image, there are two examples of changes that can be made to the plan including a second study addition or media space. The second example shows the option for a full separate dining room addition in lieu of Bedroom 2. All elevations and floor plans are totally custom to fit your family's needs! We will have high speed internet in our new development with fiber optics to every lot. The utilities are finishing in February and concrete roads being poured in March. Located 3 minutes off of FM 121 and a quick 8 minute from Highway 75. No HOA, deed restrictions and architectural approval committee in place for quality of homes. One large animal allowed per one acre lot. Six chickens allowed per lot. Scott Post Homes has a model home located at 674 Pike Rd in Gunter, TX. Give us a call and we can get you in to see the model at any time! Happy Snow Day, one of our standard options include a 50 inch wood burning fireplace for cold snow days. Our Model in Gunter is open this weekend and week if your brave enough to come out, call for times and appointment. SPECIAL LOW INTEREST RATE JUST LOWERED to 5.5% on our OTC loan program for our builds!