5
5
4021
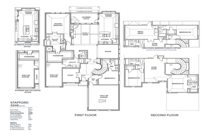
Property Description: Popular open concept home features a dramatic two-story entry with a curved staircase. The family room and kitchen have beautiful vaulted ceilings. The home offers five bedrooms and five full bathrooms, four of which are en suite, along with a powder bath for guests. The gourmet kitchen includes quartz countertops, upgraded built-in appliances, and a walk-in pantry. The spacious primary retreat features a large walk-in closet, a box-out window, and a generously sized bathroom with an upgraded freestanding tub, large shower, and separate vanities. The primary closet has direct access to the laundry room for added convenience. A guest bedroom with an en suite bathroom and walk-in shower is located on the first floor. Additional upgrades include upgraded flooring, iron spindles at the staircase and game room overlook, and box windows at the casual dining nook.