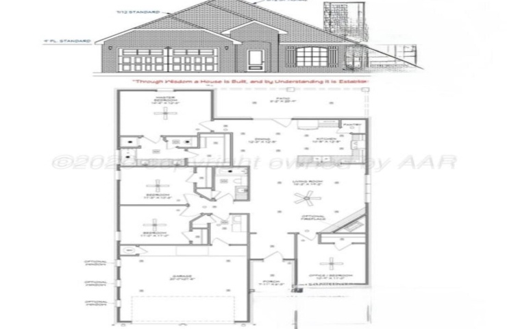
Property Description: This thoughtfully designed 4-bedroom, 2-bath home offers a spacious open-concept layout that's perfect for both everyday living and entertaining. The main living area seamlessly connects the kitchen, dining, and living room, creating a bright, welcoming space filled with natural light. The kitchen features ample counter space, modern finishes, and a functional layout that keeps you connected to family and guests. The primary suite is privately isolated from the secondary bedrooms, providing a peaceful retreat. It includes a generous bedroom, a well-appointed en-suite bath, and a large walk-in closet. Use builders preferred lender, Deanna w/ TTCU or Brenda w/ AMC and receive up to $10,000 in flex cash. If any other lender is used flex cash will be less.