5
2
1876
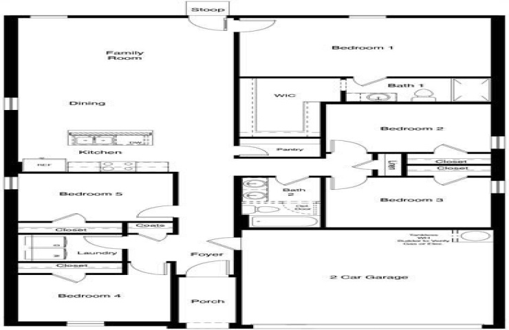
Property Description: Brand new D.R. Horton home in The Canyons community located in Keene and Keene ISD! The single-story Carson Floorplan, Elevation C, with an estimated late Spring completion, offers 5 bedrooms, 2 bathrooms, and a 2-car garage with a bright open-concept layout ideal for modern living. The family room, dining area, and contemporary kitchen flow seamlessly together, creating a welcoming central gathering space. The kitchen features quartz countertops, 36” upper cabinets, stainless steel appliances, a gas range, center island, stainless steel sink, and pantry. The private primary suite includes an en-suite bath with dual quartz vanities, a 5-foot oversized shower, and a walk-in closet. Four secondary bedrooms and a full bathroom provide flexible space for family, guests, or a home office. Luxury vinyl plank flooring enhances the main living areas and wet zones for durability and easy maintenance. Built with energy-efficient construction and equipped with America’s Smart Home® Technology. Conveniently located just off Hwy 67 with easy access to shopping, dining, and healthcare.