4
3
1953
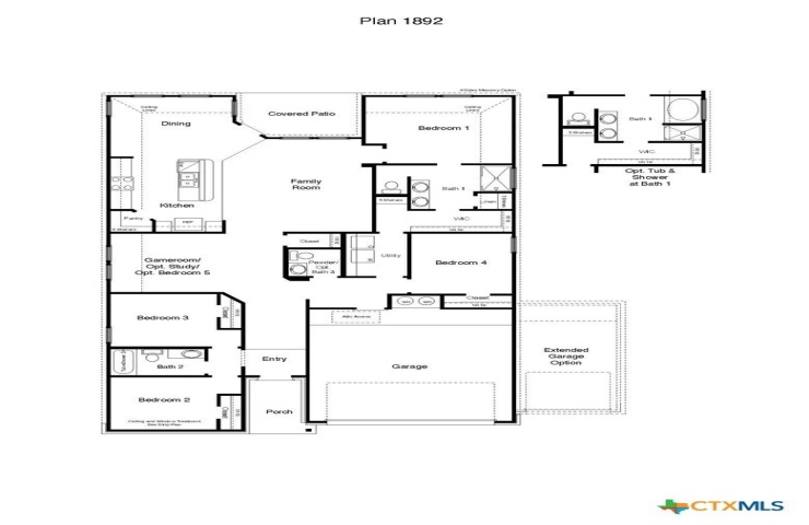
Property Description: Welcome to the Prescott floorplan at Warrior's Legacy, this beautiful single story 2-3 car garage option home in Nolanville, Texas is just what you have been looking for. Inside this beautiful 4-bedroom, 2-bathroom floorplan, you'll find approximately 1,953 square foot home that makes the most of its space. The living area is an open concept, where your kitchen, living, and dining areas blend seamlessly into a space perfect for everyday living and entertaining. The kitchen features flat panel birch cabinets and granite countertops, with decorative tile backsplash. Enjoy the open dining area that is connected to the covered patio for you to enjoy the views of nature from the backyard. The primary bedroom features an attached primary bathroom with a walk-in shower that can be opted for a tub and shower, and a spacious walk-in closet that allows easy access to the laundry room. The secondary bedrooms are spacious and carpeted, with easy access to a secondary bathroom. With the game-room, study, or bedroom option, this plan allows you to customize to your needs. You'll enjoy the smart home technology that is built into every D.R. Horton home. There's no reason to wait, come look at the Prescott floorplan today!