5
4
3795
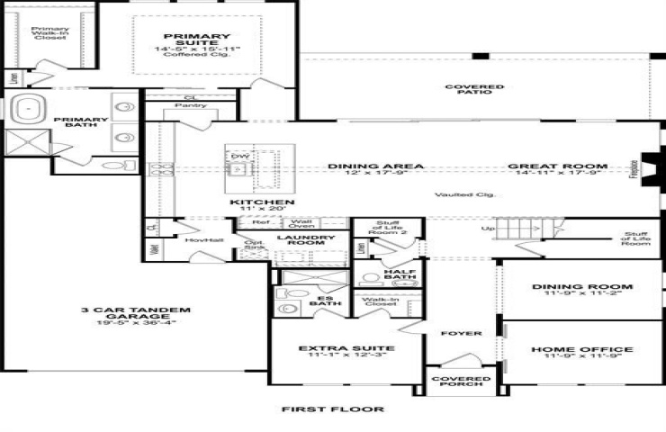
Property Description: Rockwall Schools! Located in master-planned community of Monterra, the neighborhood will offer amazing amenities including a resort-style pool, pickleball court, playground, and walking trails. This stately 2-story home offers an Extra Suite with private bedroom and bath, perfect for guests or multi-generational living. Beyond the welcoming foyer, a private home office is perfect for remote work and the sizable great room is filled with natural light. A well-equipped kitchen includes an island a large pantry, and adjacent dining area with access to a covered patio. Includes a private dining room for special occasions. The primary bedroom on first floor features a huge walk-in closet and bath with dual sinks. The 2nd floor loft is great for entertaining, and all upstairs bedrooms include walk-in closets.