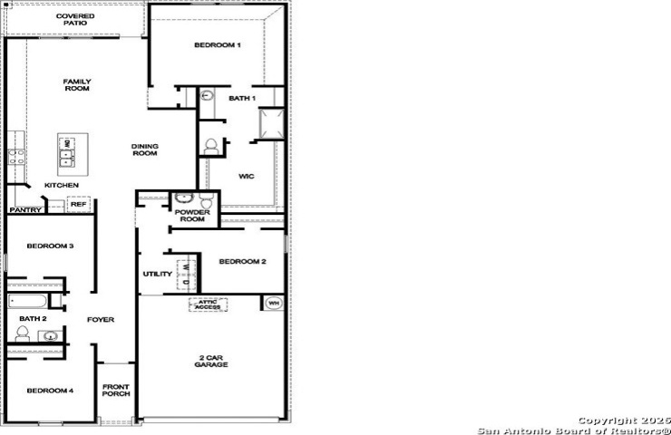
Property Description: Smart design and spacious living come together in The Harris floor plan located at Brookstone Creek in San Antonio, TX - an elegant 1823 square foot, single-story home offering four bedrooms, two and a half baths and thoughtfully curated spaces for your lifestyle. An extended entryway leads you into a bright and open layout, where the kitchen, dining area and living room flow seamlessly together - perfect for family gatherings and entertaining. The kitchen is a modern showpiece with stainless steel appliances, a gas cooking range, quartz countertops, stylish flat panel cabinetry and a farmhouse-style sink. A spacious island anchors the space while a classic white subway tile backsplash ties everything together with timeless appeal. Privately located at the rear of the home, the primary bedroom suite is a true retreat, featuring a walk-in shower, dual vanity sinks and a generously sized walk-in closet. The secondary bedrooms offer comfort and flexibility. Each includes carpet flooring, large windows and ample closet space - ideal for bedrooms or other flex spaces. The convenient half bathroom adds a practical touch for visitors without sacrificing privacy in the full bathrooms. This home includes our HOME IS CONNECTED base package. Using one central hub that talks to all the devices in your home, you can control the lights, thermostat and locks, all from your cellular device. Additional highlights include hard surface flooring throughout the main living areas and wet zones, a covered patio (per plan) for relaxing outdoors, full yard landscaping with irrigation and a pre-plumbed water softener loop to support your future upgrades. The Harris offers the perfect mix of space, function and style - all set within the inviting community of Brookstone Creek. Modern design meets everyday livability in The Gaven floor plan located at Brookstone Creek in thriving San Antonio, TX! This spacious 1778 square foot, single-story home offers four bedrooms, two full bathrooms and a well-balanced layout perfect for a variety of lifestyles. From the moment you enter, a welcoming foyer sets the tone for the home's open and airy feel. The kitchen, dining area and living room are centrally located in an open-concept design, making it easy to entertain or enjoy everyday moments. The kitchen is both stylish and functional, showcasing stainless steel appliances, a gas cooking range, quartz countertops, flat panel cabinetry and a farmhouse-style sink. A spacious kitchen island and white subway tile backsplash add the finishing touches to this modern culinary space. The primary suite, tucked away at the rear of the home for privacy, offers a generous retreat complete with a tiled walk-in shower, dual vanity sinks and a walk-in closet. Your secondary bedrooms are thoughtfully designed to offer privacy and flexibility. Each room features quality carpet flooring, windows and ample closet space, making them ideal for children, guests or a home office. This home includes our HOME IS CONNECTED base package. Using one central hub that talks to all the devices in your home, you can control the lights, thermostat and locks, all from your cellular device. Enjoy outdoor living with a covered patio (per plan), full yard professional landscaping package and irrigation, ensuring that your home looks its best every single day. The Harris floor plan offers thoughtful design, stylish finishes, and plenty of room to grow - right here in vibrant Brookstone Creek.