5
4
3797
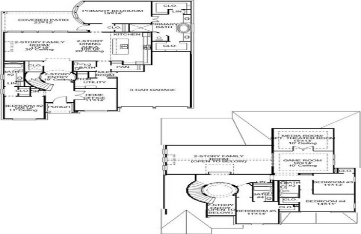
Property Description: Large porch area leads to a two-story rotunda entry with a 19-foot ceiling. Home office with French doors. Guest suite with a full bath and a large closet. Kitchen features an island with built-in seating space, a 5-burner gas cooktop, double wall oven, lots of counter space and a large walk-in pantry. Two-story dining area leads to the open family room with a wall of windows and a wood mantel fireplace. Hardwood floors throughout main living area. Secluded primary suite with a curved wall of windows. Double doors lead to primary bath with dual vanities, a freestanding tub, a separate glass-enclosed shower and two large walk-in closets. Curved staircase leads to the second level featuring a game room, a theatre room with French doors and a guest suite with a full bath and a walk-in closet. Covered backyard patio. Mud room leads to the three-car garage.