4
3
2686
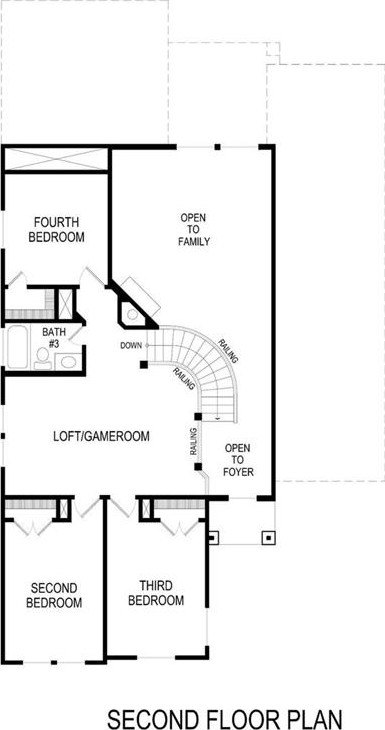
Property Description: MLS# 21189383 - Built by First Texas Homes - Jun 2026 completion! ~ Discover this spacious 4-bedroom, 3-bath home offering 2,665 sq ft of thoughtfully designed living space. The main level features upgraded wood floors and a versatile enclosed flex room, perfect for a home office or playroom. The gourmet kitchen boasts cabinets to the ceiling and a convenient sliding door for easy outdoor access. Enjoy upgraded carpet throughout and a stylish shower in the powder room. A 2-car garage provides ample storage. Don’t miss your chance—schedule your tour today!