5
4
3211
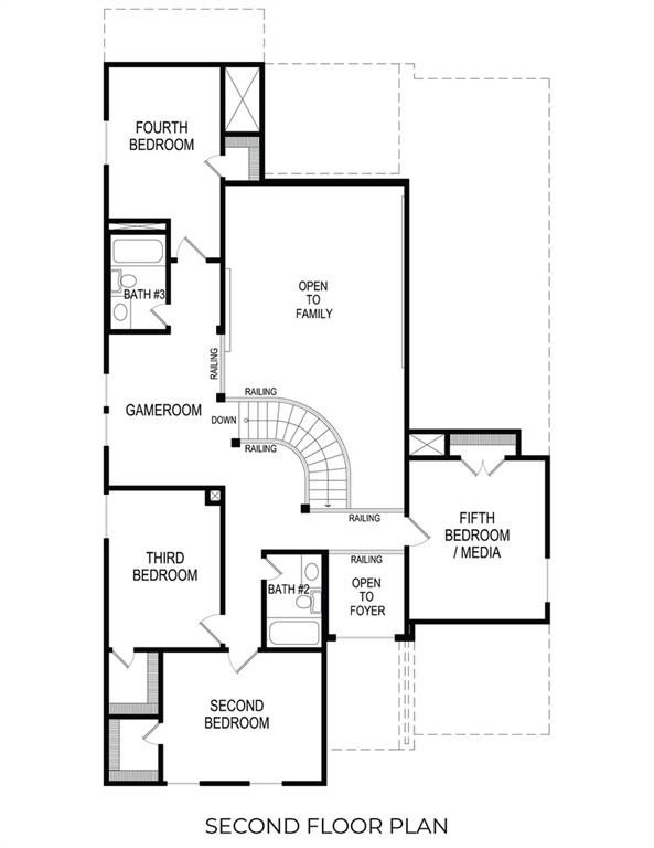
Property Description: MLS# 21189396 - Built by First Texas Homes - Jun 2026 completion! ~ Discover this stunning 5-bedroom, 3.5-bath home on a desirable south-facing corner lot. With 3,209 sq ft of thoughtfully designed living space, this residence features a spacious open floor plan, upgraded LVP flooring downstairs, and plush upgraded carpet throughout. The custom kitchen boasts a wood hood and premium vent, perfect for culinary enthusiasts. Enjoy the luxury of a frameless prime bath shower and a convenient shower in the powder room. A two-car garage completes this exceptional home. Schedule your tour today!