3
2
1411
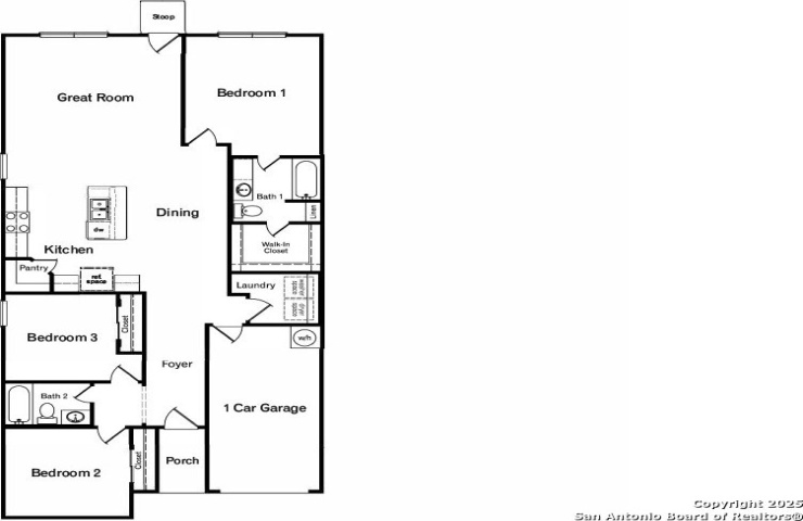
Property Description: Step into The Tobin floorplan at Redbird Ranch in San Antonio, TX, a single-story home featuring 3 bedrooms and 2 bathrooms. The Tobin also offers 2 classic exterior with siding, a 1-car garage and 1412 square feet of comfortable living space. The Tobin features an open-concept layout that blends seamlessly to create the perfect every day space designed with you in mind. An elongated foyer leads you to the kitchen and dining space before flowing into a grand living room. The kitchen features quartz countertops, gleaming stainless steel appliances, shaker style cabinets and an eat-in bar that overlooks the dining area. Your main bedroom suite is located off the living area toward the back of the home and includes a walk-in closet and a relaxing bathroom space. The ensuite bathroom includes a single vanity sink with a spacious quartz counter top, shaker style cabinets and combined shower and bathtub. You'll find quality carpet and spacious closets in all of your secondary bedrooms, located off the front foyer of the home. Use these rooms as offices, playrooms or other bonus spaces. Head out the back door located off the living room to find a fully landscaped yard with a state-of-the-art irrigation system. Additional features include sheet vinyl flooring in entry, living room, and all wet areas, quartz counter tops in all bathrooms and our HOME IS CONNECTED base package. Using one central hub that talks to all the devices in your home, you can control the lights, thermostat and locks, all from your cellular device.