4
3
2106
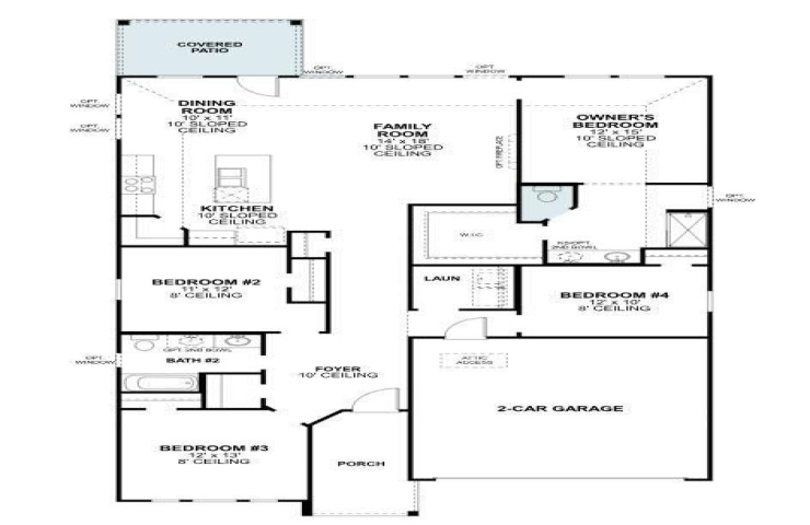
Property Description: Built by M-I Homes. Discover this stunning new construction home at 3616 Birch Lane in Argyle, Texas. Offering a well-designed living space, this single-story home features 4 bedrooms, 3 bathrooms, and an open-concept layout perfect for modern living. Key Features: • 4 spacious bedrooms with owner's suite in its own private corner • 3 full bathrooms with quality fixtures and finishes • Open-concept floorplan connecting main living areas • Well-appointed kitchen with contemporary design elements • New construction with quality craftsmanship throughout Neighborhood & Location Benefits: • Peaceful Argyle setting with convenient access to parks • Family-friendly neighborhood atmosphere • Close to local shopping, dining, and recreation The single-story design provides easy accessibility and a natural flow between living spaces. Ample natural light, functional layouts, and modern finishes create a welcoming environment for everyday living and entertaining guests. Schedule a visit today!