4
2
1877
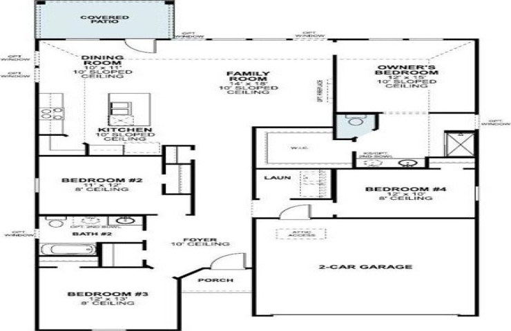
Property Description: Built by MI Homes. Discover this stunning new construction home at 14064 Kempt Drive in Pilot Point, built by MI Homes. This thoughtfully designed 4-bedroom, 2-bathroom home a comfortable living space with the owner's bedroom conveniently located on the main floor. Key Features: Open-concept living space with sloped ceilings Granite kitchen countertops Covered patio Owner's en-suite bathroom with a dual-sink vanity This new construction home showcases excellent design quality throughout, featuring an open-concept layout that seamlessly connects living areas. The owner's suite provides ample space and privacy, while 3 additional bedrooms offer flexible space for family, guests, or home offices. Built with attention to detail and quality craftsmanship, this MI Homes construction represents an excellent opportunity to own a brand-new home with no previous wear. The open floorplan creates an inviting atmosphere for both daily living and hosting guests. Experience the benefits of new construction, including energy efficiency, updated building standards, and the peace of mind that comes with being the first owner. This home combines practical design with quality construction in a desirable Pilot Point location. Schedule a visit today!