4
4
3241
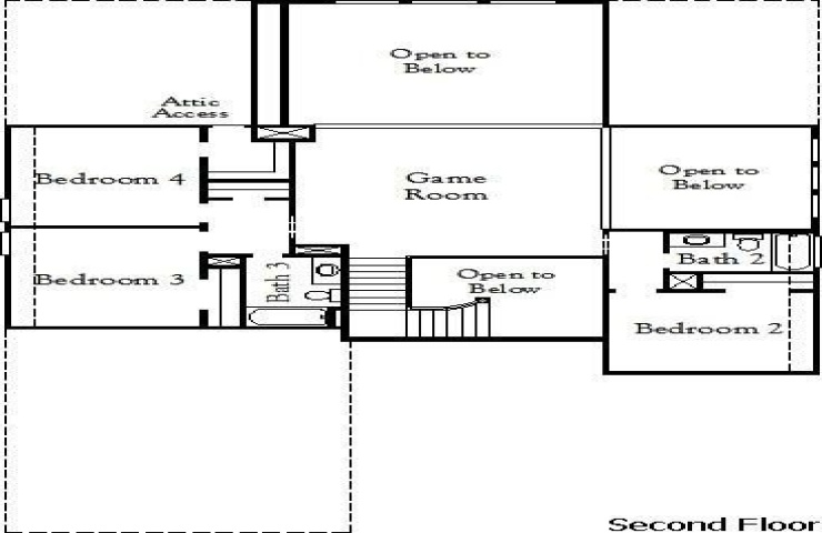
Property Description: MLS# 21190912 - Built by Coventry Homes - Jun 02 2026 completion! ~ Step into the Edwards floor plan, a luxuriously crafted two-story home featuring elegant curb appeal, double front doors, and soaring high ceilings that create a bright, open atmosphere. This spacious design offers 4 bedrooms and 4 full bathrooms, a large game room, and a dedicated media room- perfect for easy living and effortless entertaining. Both the dining and great rooms boast 19-foot ceilings with an open banister overlook from the game room above, while double-height windows fill the spaces with natural light and highlight stunning architectural details. Thoughtful touches include a primary closet with direct laundry pass-through, an oversized pantry, and abundant storage throughout. With the largest backyard of all our floor plans, this home combines exceptional layout, light-filled spaces, and unmatched functionality. Schedule your tour today and discover why the Edwards is the perfect place to call home!