4
3
2683
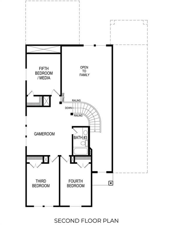
Property Description: MLS# 21191152 - Built by First Texas Homes - May 2026 completion! ~ Step into a home that makes an unforgettable first impression—and then keeps exceeding expectations. This incredible four-bedroom, three-bath residence is designed to impress, beginning with the dramatic grand stairwell, the true centerpiece of the home. From the moment you enter, your eyes are drawn upward, setting the tone for the elegance and scale found throughout. The heart of the home is the expansive family room, highlighted by a soaring vaulted ceiling that floods the space with light and volume. Anchoring the room is a stunning floor-to-ceiling tiled fireplace surround, creating a perfect blend of warmth and architectural drama. Flowing seamlessly into the open-concept kitchen, this space is ideal for both everyday living and effortless entertaining. The main level offers exceptional convenience, featuring two bedrooms and two full baths, including a serene primary suite designed as a private retreat. Thoughtfully positioned, the primary bedroom provides comfort, privacy, and ease—perfect for modern living. Upstairs, the home truly expands. You’ll find two oversized secondary bedrooms, each offering generous space and flexibility, along with a spacious game room ready for fun and gatherings. Completing the upper level is a dedicated media room, creating the ultimate environment for movie nights, sports viewing, or immersive entertainment. With its thoughtful layout, striking architectural features, and spaces designed for both relaxation and recreation, this home...