5
4
4007
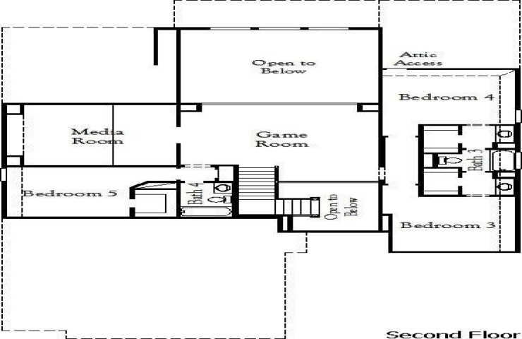
Property Description: MLS# 21191785 - Built by Coventry Homes - Apr 26 2026 completion! ~ Step into luxury and live the life you’ve always imagined! This stunning home features 5 generously sized bedrooms and 4.5 beautifully appointed bathrooms, perfectly designed for comfort and style. Host dinners in the elegant formal dining room, catch a movie in the private media room, or enjoy coffee in the sunlit breakfast nook- every space is crafted with care and sophistication. The Garza plan includes an impressive primary suite and a private downstairs ensuite ideal for generational living. Work from home in the quiet dedicated study and be wowed by soaring ceilings and a dramatic curved staircase. With a spacious 3-car garage and thoughtful design throughout, this home isn’t just a place to live- it’s a place to love. Schedule your tour today!