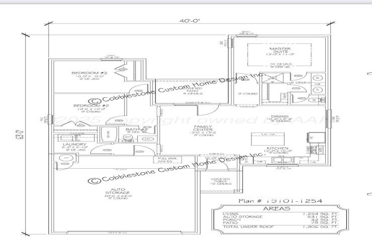
3
2
1254
Property Description: Check out this NEW home being built on Greenwood with 3 bedrooms, 2 full baths, and two car garage!! This home is an open floor plan with an isolated master for privacy!! The home will include granite counter tops, sod and sprinkler system on the front yard and a smart garage. The home is located Amarillo College, Hereford Civic Center, HRMC, and Walmart. Hereford Junior High and Northwest Elementary are a short distance away. Buyer may have options depending on stage of the building process. This home is proudly being built by Highpoint Custom Homes. Builder can add a shed for an exceptional price but must be paid upfront. Get at me so we can get you into an affordable NEW home!!