4
3
2788
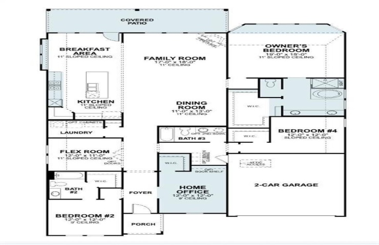
Property Description: Built by M-I Homes. Welcome to this stunning new construction home at 1634 Anemone Lane in Prosper, TX, offering a thoughtfully designed layout with modern finishes and generous living areas. Key Features: • 4 spacious bedrooms and a home office; and with the owner’s bedroom conveniently located on the main level • 3 well-appointed bathrooms designed for convenience • spacious amount of professionally designed living space • Open-concept living area creating a seamless flow for entertaining • Fresh construction showcasing quality materials and craftsmanship throughout Neighborhood & Location Benefits: • Situated in a desirable Prosper neighborhood known for excellent planning • Minutes away from beautiful parks and outdoor recreation opportunities • Located in a thoughtfully developed and welcoming community environment The open main living area creates a natural gathering space while maintaining comfortable flow throughout the home. With its functional layout and modern design, this home delivers a perfect blend of comfort and style in one of Prosper's most sought-after neighborhoods. Schedule your private tour today.