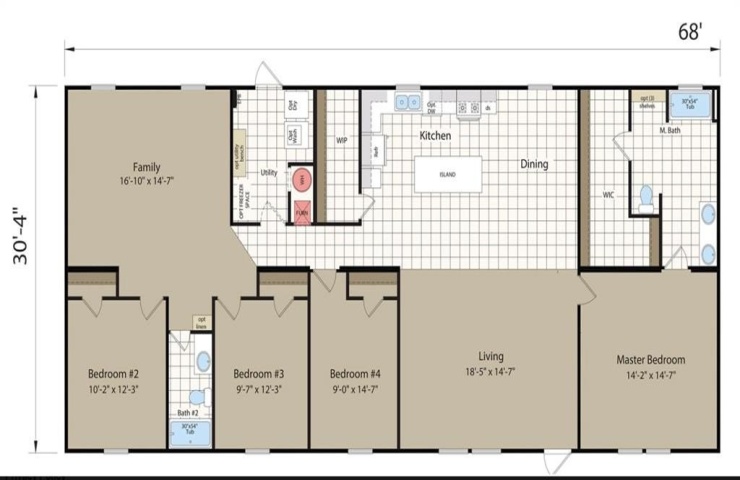
124 Cary Lane Springtown, Texas 76082 Listing ID 21194023
4
2
2063
Property Description: Beautiful new 4 bedroom 2 bath with 2 living areas on a full acre lot. Lot's of upgrades in this home including drywall walls in main living areas.
This home will be completed and ready to move in by mid March.