3
2
2132
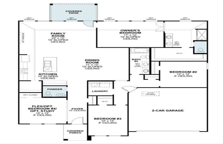
Property Description: Built by MI Homes, this stunning new construction home at 150 Hudson Lane in Justin, Texas, has a layout that prioritizes natural light and effortless movement throughout the interior. Key features of this single-story home include 3 spacious bedrooms, 2 full bathrooms plus 1 half bath, an open-concept floorplan, spacious amount of living space, and a 2-car garage. The kitchen, dining area, and family room flow together naturally. fostering a connected environment suited for both entertaining and daily living. The owner’s suite, which features an en-suite bathroom with a double-sink vanity and a huge walk-in closet, is in its own private corner. The additional bedrooms, as well as the versatile bonus room, provide flexible space for family, guests, or a dedicated home office. With its functional floorplan and modern building standards, this move-in-ready home delivers a comfortable environment that balances stylish aesthetics with practical daily living. Schedule your visit today!