4
2
1877
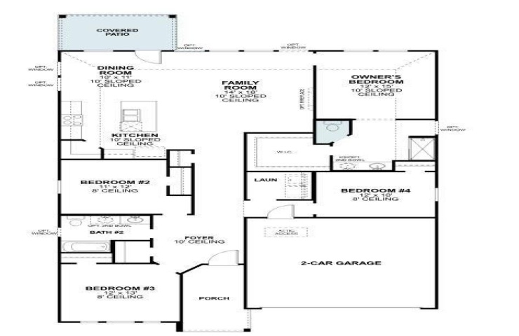
Property Description: Built by MI Homes, this stunning new construction home at 7524 Lavender Lane in Ponder, TX, features a dynamic layout that prioritizes natural light and effortless movement throughout the interior. Highlights include 4 spacious bedrooms, 2 full bathrooms, an open-concept design that creates a seamless flow between main areas, a covered patio and large backyard, and a 2-car garage. Seamlessly connected, the open-concept main living area works perfectly for both entertaining and daily life. The impressive kitchen features beautiful countertops and cabinets, an eat-in island, and a walk-in pantry. Located in its own private corner, your owner’s suite features an en-suite bathroom with a dual-sink vanity, separate tub and shower, and a huge walk-in closet. The three additional bedrooms offer flexibility for guests, family, or a dedicated home office. With its functional floorplan and modern building standards, this move-in-ready home delivers a comfortable environment that maximizes every square foot for contemporary living. Schedule your visit today!