4
3
2950
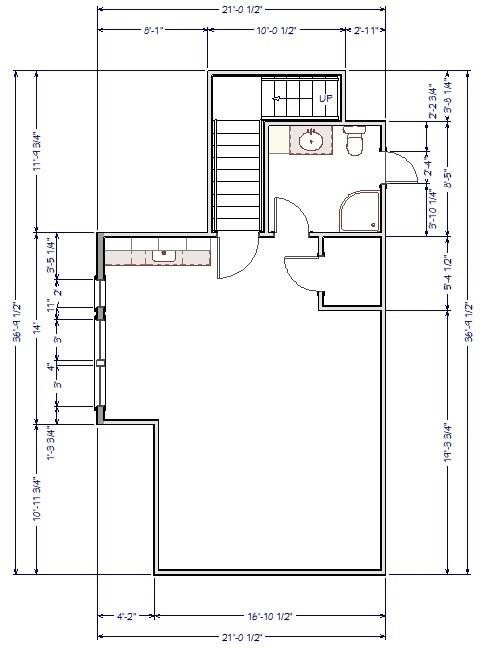
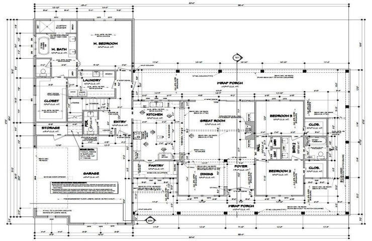
Property Description: Currently under construction - Opportunity now to customize your finish out. No HOA but common sense deed restrictions in place. As currently planned completed home will include: Guest suite apartment or extra entertainment area upstairs over good sized garage with kitchenette and full bath. Perfect for that older child needing some separate space, home officing, or a second living area for entertaining. Custom cabinetry to 10ft ceilings, and hard wood floors. This home will have an in home CONCRETE STORM SHELTER behind secret swing out cabinetry. The home will have spray foam insulation including fully insulated garage and garage door allowing for an easily air conditioned and heated garage work space. More features include tankless water heater, and dog wash station. With this beautiful design enjoy your breathtaking hilltop views on your 3 SIDED WRAP AROUND PORCH. New cul de sac subdivision in desirable Slidell ISD. Modern farmhouse country home set back away from highways and city noise, but only 15 minutes to charming Decatur with multiple independent restaurants and shopping. Denton is also a short distance away. No HOA but common sense deed restrictions. Out buildings of quality new construction allowed. Hobby animals welcome. See our other listing 119 Chance Farm Road (MLS#20556296) as an example of the finish out.