4
3
2895
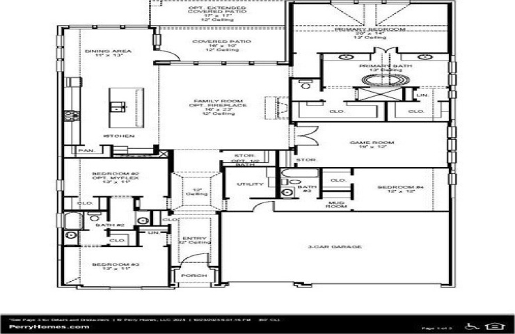
Property Description: Extended entry leads to open family room, kitchen and dining area. Family room features sliding glass doors and a wood mantel fireplace. Kitchen hosts island with built-in seating space and a 5-burner gas cooktop. Game room with French doors just off family room. Secluded primary suite. Dual vanities, a freestanding tub, separate glass-enclosed shower and two large walk-in closets in primary bath. A Hollywood bath, high ceilings, large windows and abundant closet space add to this one-story design. Extended covered backyard patio. Mud room off three-car garage