5
2
1892
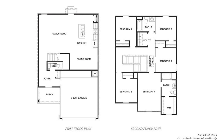
Property Description: The Franklin plan is one of our two-story homes featured in Sereno Springs in Adkins, TX. This new home layout offers 2 classic front exteriors, 5 bedrooms or 4 bedrooms with a loft space, 2.5 baths, 2 car-garage and 1891 square feet of comfortable living. Step inside The Franklin to find an elongated foyer opening to an open concept living room, kitchen, and dining area. The gourmet kitchen faces the living area so you don't miss a thing while cooking and includes quartz counter tops, stainless steel appliances and shaker style cabinetry. The main bedroom is located toward the front of the home on the second story and features an attractive attached bathroom with a walk-in shower, quartz countertops, a grand walk-in closet and plenty of storage space. The second story includes all secondary bedrooms, and two full bathrooms. You'll have carpeted floors in every bedroom and sheet vinyl flooring in your bathrooms and utility room. Additional features include sheet vinyl flooring in entry, living room, and all wet areas, quartz counter tops in all bathrooms and HOME IS CONNECTED base package. Using one central hub that talks to all the devices in your home, you can control the lights, thermostat and locks, all from your cellular device.