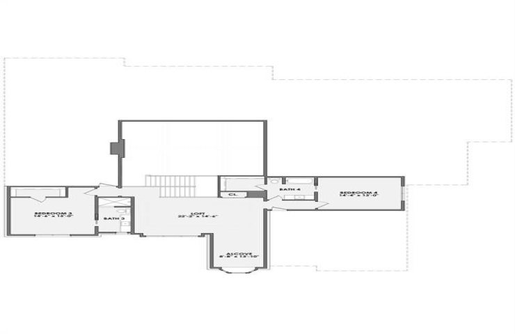
Property Description: Crafted by Graham Hart Home Builders, this brand new custom residence in Colleyville, TX delivers 5,501 square feet of refined luxury designed for elegant entertaining and effortless everyday living. The light filled plan offers 4 bedrooms, 4.5 baths, and a spacious 3 car garage. At the heart of the home, a chef’s kitchen with an oversized island is complemented by a discreet prep kitchen for seamless hosting and extra storage. The great room opens to an extended outdoor living area with a built in kitchen, creating a true indoor and outdoor retreat for year round gatherings. A formal dining room and private study enhance the main level, while a separate mudroom and dedicated utility room keep life organized. The primary suite provides a serene escape with a spa caliber bath and generous closet, and an additional first floor guest suite ensures comfort for visitors or multigenerational living. Entertainment shines in the sophisticated game room with an integrated wine bar, and upstairs a dedicated kids loft and cozy alcove offer perfect spaces to play, study, or unwind. Two secondary bedrooms, each served by their own bath, complete the second level. Thoughtfully curated finishes and timeless craftsmanship throughout blend style and function in one of Colleyville’s most sought after locations, an exceptional opportunity to own a new build that truly has it all.