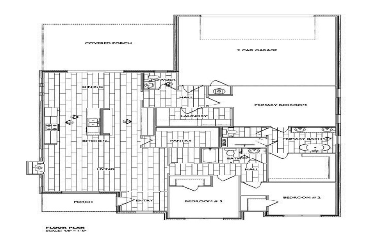
Property Description: Located in Frenship Estates, French Brothers Homes presents this new construction home which offers 2,115 square feet with 3 bedrooms and 2.5 bathrooms. The open concept kitchen, dining and living area creates a functional space for everyday living, complete with a large island and walk-in pantry. The isolated primary suite features double vanities, a soaking tub, separate shower, and a spacious walk-in closet. Additional highlights include a covered back porch, dedicated laundry room, and 2 car garage. Built with the craftsmanship and quality this builder is known for, this home is located near the new Frenship Memorial High School and close to shopping, dining, and everyday conveniences. The home features the modern "Charcoal Haze" design palette with neutral cabinetry, light wood flooring, and contemporary finishes