4
3
2682
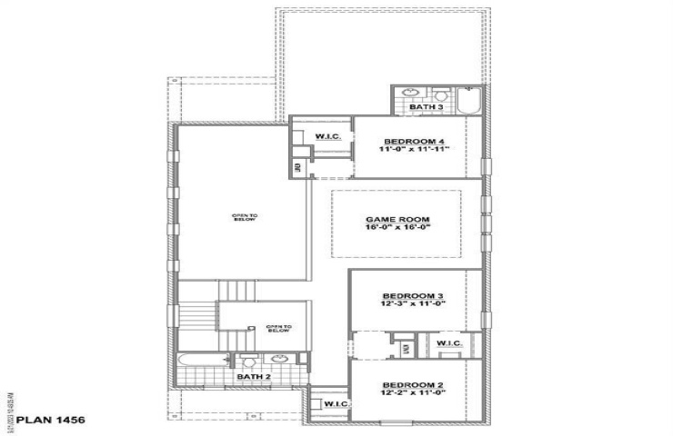
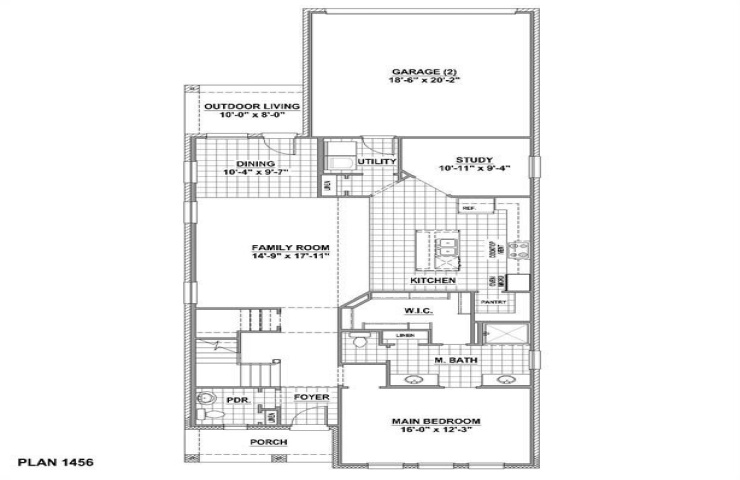
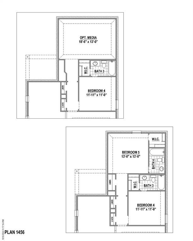
Property Description: This charming Craftsman-style home, located in the Wellington subdivision, sits on a gorgeous home site! This two-story home features four spacious bedrooms and three bathrooms plus a powder room on the first floor providing convenience for guests. The home includes a large primary suite with dual vanities, luxurious shower and a generous walk-in closet. The open floor plan seamlessly connects the family room to the kitchen and dining area, creating an ideal space for entertaining. The family room also opens up to a back patio perfect for indoor-outdoor living. Additional highlights include an upgraded kitchen including premier appliances and hardwood flooring. Additionally, there is an expansive game room for family fun times and a study for remote work. Residents of the Wellington subdivision enjoy access to two pools, walking trails, parks, playgrounds and pavilions with grilling areas. The location is convenient to DFW Airport, shopping, dining and the highly rated Northwest ISD schools. American Legend personnel are available seven days a week to discuss this home with you and all the options we provide. This home truly combines beauty, comfort and convenience.