4
3
2781
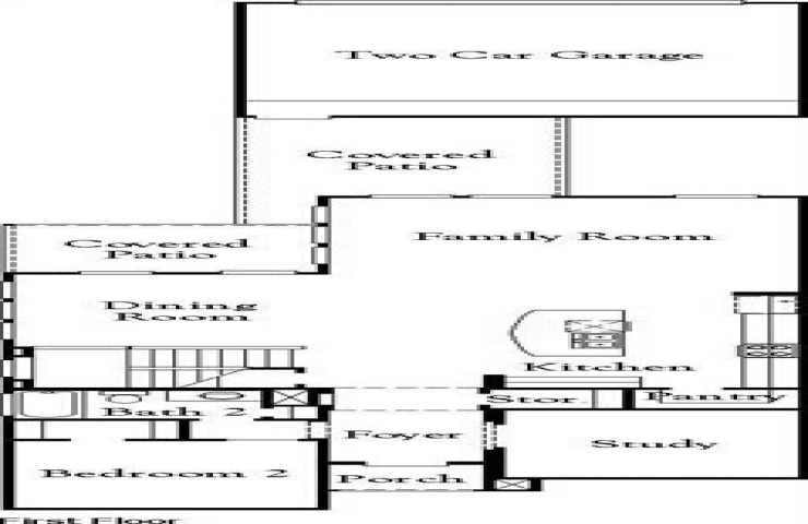
Property Description: MLS# 21208644 - Built by Coventry Homes - Jul 30 2026 completion! ~ Discover this stunning traditional single-family residence in the coveted Cambridge Crossing subdivision, set to be completed by July 30, 2026. This expansive home boasts 2,781 sq. ft. of thoughtfully designed living space to accommodate your family's needs. The open floorplan is centered around the gourmet kitchen featuring an oversized island, quartz countertops and a walk-in pantry. Enjoy seamless indoor-outdoor living with a covered patio and a private yard, perfect for relaxation or entertaining. Additional features include ENERGY STAR rated equipment, sprinkler system and security system wiring. Located within the Celina ISD, this property is conveniently situated near Tommie Dobie Bothwell Elementary, Jerry & Linda Moore Middle School, and Celina High School. Don’t miss this opportunity to make this home yours!