5451
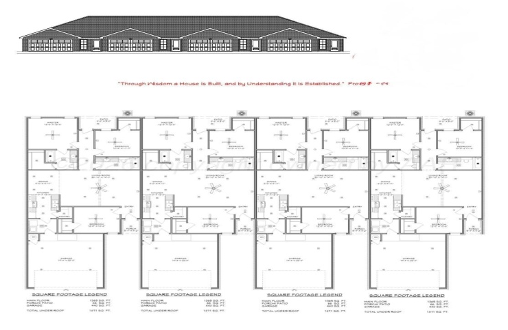
Property Description: Spacious quad-plex set on one acre, featuring an open floor plan in each unit with 3 bedrooms and 2 bathrooms. Modern kitchens flow seamlessly into bright living and dining areas, offering a comfortable, versatile layout. Ideal for investors or multi-family living, with plenty of outdoor space for parking, recreation, or future expansion. Use builders preferred lender and receive up to $10,000 in flex cash. If any other lender is used flex cash will be less.