5
4
3397
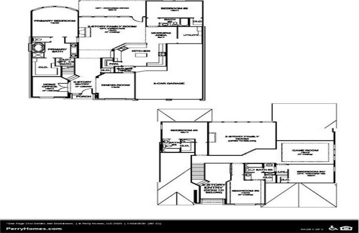
Property Description: Home office and media room both with French doors frame the two-story entryway. A private guest suite is off of the main hallway and features a full bathroom. The family room and dining area connect for an open concept living space. Family room highlights a wood mantel fireplace. The kitchen features an island with built-in seating, double wall oven, a 5-burner gas cooktop, and a walk-in pantry. The primary bedroom boasts three large windows. The primary bathroom has dual vanities, a freestanding tub, a separate glass enclosed shower, and two walk-in closets. Upstairs you are greeted by a large game room that overlooks the first floor. Secondary bedrooms featuring walk-in closets, linen closets, and full bathrooms complete the second level. Extended covered backyard patio. The utility room and mud room are off of the three-car garage.