4
2
2591
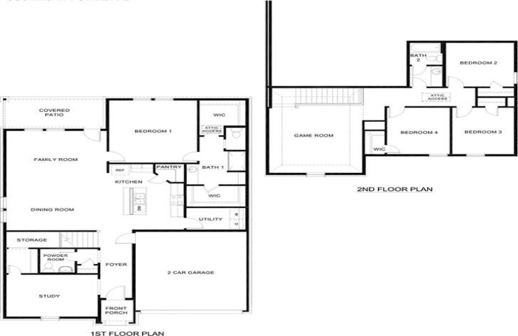
Property Description: Conveniently located off CR 546, just across from Lavon lake, this 2,591 sq ft home offers 4 bedrooms, 2.5 bathrooms, and a dedicated study, providing ample space for work, relaxation, and family living. Designed for modern lifestyles, this home features a smart home system, stainless steel dishwasher, stove and built-in microwave, combining convenience and style in every detail. Make this stunning home yours!