3
2
1496
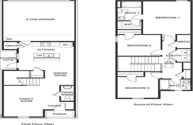
Property Description: The Anaheim plan by D.R. Horton in the California Meadows community in Arlington, Texas, offers a modern and spacious two-story home with approximately 1,496 sq. ft. of living space. This home includes 3 bedrooms, 2.5 bathrooms, and a 2-car garage, designed for comfortable family living. The open-concept design seamlessly connects the living, dining, and kitchen areas, making it ideal for both daily living and entertaining guests. Key features of the home include a stylish kitchen with painted cabinets, quartz countertops, a large island, stainless steel appliances with gas cooking range. A powder bath off the kitchen for guest convenience. The bedroom 1 suite upstairs includes a walk-in closet and a luxurious bathroom with walk-in shower and quartz countertops. Vinyl flooring throughout the foyer, dining, kitchen, and family room, bathrooms, and utility room. A side covered patio and low-maintenance lawn care to save time and reduce costs. You’ll also enjoy smart home features, from your couch or from 500 miles away. You’ll never be too far from home with America’s smart home. The Anaheim plan is perfect for families who want modern amenities, and a comfortable, low-maintenance lifestyle.