4
3
2064
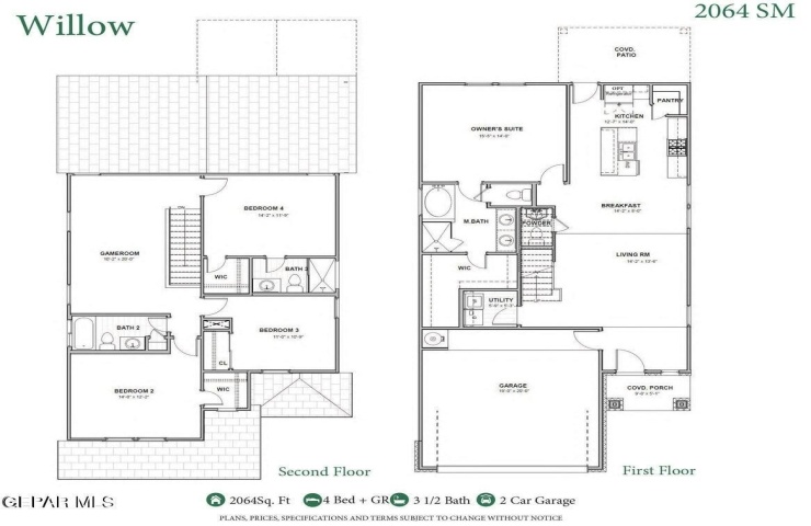
Property Description: The Willow. A 2 Story, 4 Bedroom, 3 full bath 1 half bath. PLUS a Game room. Granite countertops in the kitchen. Appliance packages are available on select homes. Please contact for further information. 12' X 18' tile flooring, refrigerated air, double pane windows, front yard landscaping, insulated roll-up sectional garage door. This new home is energy efficient, pre wired for security system and includes a 10 year HOME of Texas warranty. All minor rooms are nicely sized and wired and blocked for ceiling fans. The master suite has a spacious walk-in closet and master bathroom with double sinks. The pictures are not of the actual home to be built, but will be the same floorplan and similar finishes. The Amenity Center The Club features a pool, sport courts, outdoor games and a gym.