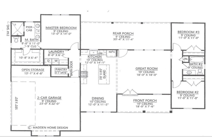
Property Description: Very early stages!!! New construction home featuring an open concept design with tall ceilings and a bright, spacious feel throughout. The island kitchen offers bar seating, ample prep space, and a convenient pantry for added storage. Durable vinyl plank flooring runs seamlessly throughout the home, combining style and easy maintenance. The split bedroom floor plan provides privacy, with an enlarged primary suite designed for comfort. The primary bathroom includes dual sinks, a separate soaking tub, and a walk-in shower, along with an oversized closet. Enjoy outdoor living on the covered patio, perfect for relaxing or entertaining.**See in person, changes will be made to the floor plan and the home front sketch**