4
2
2029
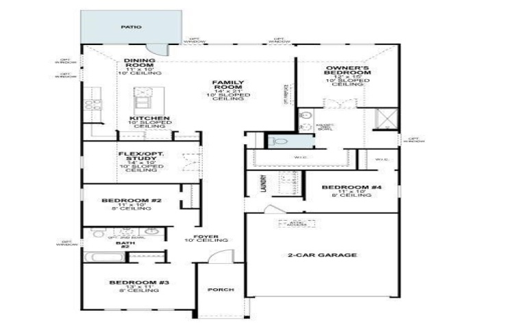
Property Description: Built by M-I Homes. Welcome home to 724 Grand Dale Drive in Lavon, TX. The Herrera is a smartly designed single-story home that blends flexibility and comfort. With 4 bedrooms, 2 full bathrooms, and plenty of open living space, this layout is perfect for growing families, remote workers, or anyone seeking the ease of main-level living. Step through the covered front porch into a welcoming foyer with soaring 10' ceilings. Toward the front of the home, you’ll find two secondary bedrooms and a full bath—ideal for kids, guests, or a private home office. Just beyond, a flex space offers even more versatility, with the option to transform it into a formal study with doors depending on your needs. The heart of the home is the open-concept kitchen, dining room, and family room, all enhanced by sloped ceilings and tons of natural light. The kitchen features a central island and plenty of cabinetry, while the adjacent dining space can be personalized with an optional box bay window. The spacious family room provides a seamless flow for everyday living and entertaining alike. Tucked at the back of the home, the private owner’s suite features a sloped ceiling, a large walk-in closet, and a luxurious en-suite bath. You can personalize this retreat further with a deluxe owner’s bath, bay window, or a water closet for added privacy and comfort. Additional highlights include a centrally located laundry room, generous storage throughout, and multiple outdoor living options like a patio, covered patio, or extended covered patio. Whether you need room to grow or simply want everything on one level, the Herrera delivers comfort, flexibility, and timeless design—all in one beautifully crafted plan. Schedule your visit today!