4
3
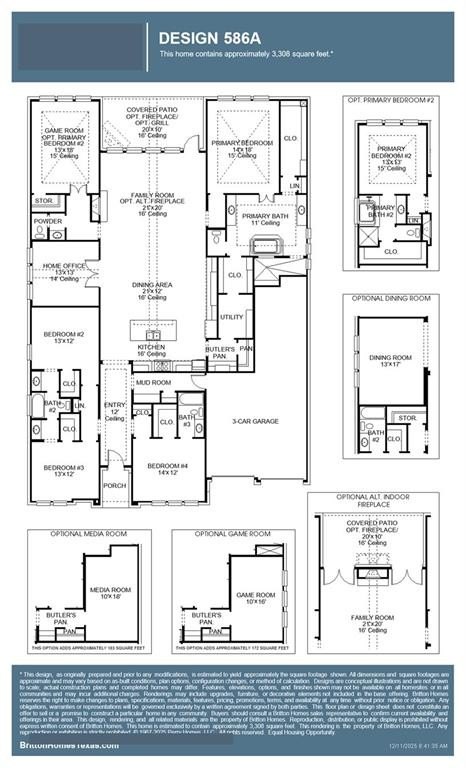
3308
Property Description: Extended entry leads to open kitchen, dining area and family room. Kitchen features walk-in pantry, double wall oven, a wet bar, Butler's pantry and island with built-in seating space. Dining area flows into family room with wall of windows and a wood mantel fireplace. Hardwood floors throughout main living area. Game room with wall of windows just off family room. Primary suite includes bedroom with wall of windows. Primary bath includes dual vanities, a freestanding tub, elongated separate shower and two walk-in closets, one with access to utility room. Guest suite offers private bath. A Hollywood bath adjoins second and third bedroom. Soaring ceilings and abundant closet space add to this generous four-bedroom design. Covered backyard patio. Mud room leads to three-car garage.