4
4
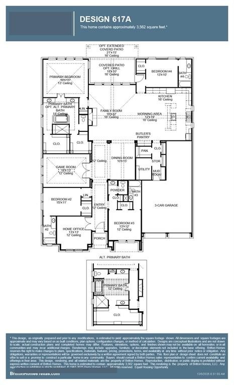
3522
Property Description: Home office with French doors set at entry. Formal dining room and game room with French doors frame extended entry. Family room with wall of windows and fireplace opens to morning area and kitchen. Kitchen hosts elongated island with built-in seating space. Primary suite includes bedroom with wall of windows. Dual vanities, freestanding tub, separate glass-enclosed shower and large walk-in closet in primary bath. All secondary bedrooms feature private baths. Soaring ceilings and large windows add to this generous four-bedroom design. Covered backyard patio. Mud room leads to three-car garage.