4
3
2173
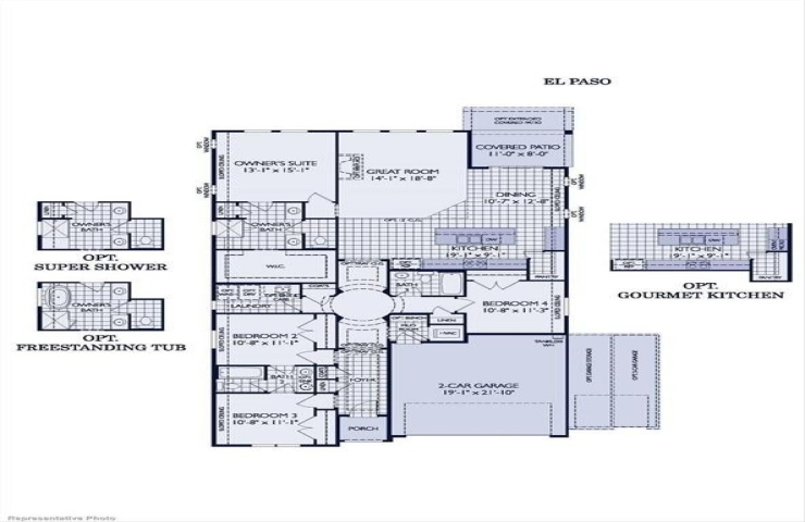
Property Description: MLS# 21212937 - Built by William Ryan Homes - May 2026 completion! ~ The El Paso plan gives you all the space you could need in a single-story home with 4 bedrooms and 3 full bathrooms. The oversized foyer welcomes you to the home with a grand rotunda the leads you into the open living and dining area in your home. The kitchen allows you to always be part of the action with an oversized island that overlooks the great room and dining room. The fourth bedroom makes a perfect guest suite with its own full-size bathroom and private space in the home. The other two secondary bedrooms will share a Jack and Jill style bathroom. At the end of the day, you will escape into relaxation in your Owner's suite and bath. This oversized space welcomes you with natural light. From here you will access the spa-like luxury bath that includes dual vanities, large walk-in shower with a free-standing tub and a generous closet. Some of the flexible options for this home include: 12’ Ceiling at Great Room, Large Covered Rear Patio, 50 Electric Fireplace, Separate Shower and Free-Standing Tub at Owner’s Bath, to name a few.