3
2
1280
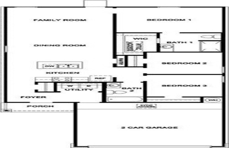
Property Description: New! Super Cute! Single story floor plan with three bedroom and two full baths. Home includes, island kitchen, granite counters throughout, LED lighting, full sprinkler system, and so much more! Welcome to Talty, Texas — where small-town charm meets modern living. Nestled just east of Dallas, Talty offers a peaceful, family-friendly atmosphere with convenient access to big-city amenities. This growing town is perfect for those looking to enjoy a relaxed lifestyle while staying close to Forney ISD schools, shopping, dining, and recreational opportunities. Our thoughtfully designed homes in Talty are built with you in mind, offering spacious floor plans, energy-efficient features, and stylish finishes. Our new homes in Talty are designed with modern conveniences, open-concept living spaces, and flexible options like home offices or guest suites. Maplewood Meadows offers a welcoming environment where neighbors can connect and families can thrive.