5
4
3192
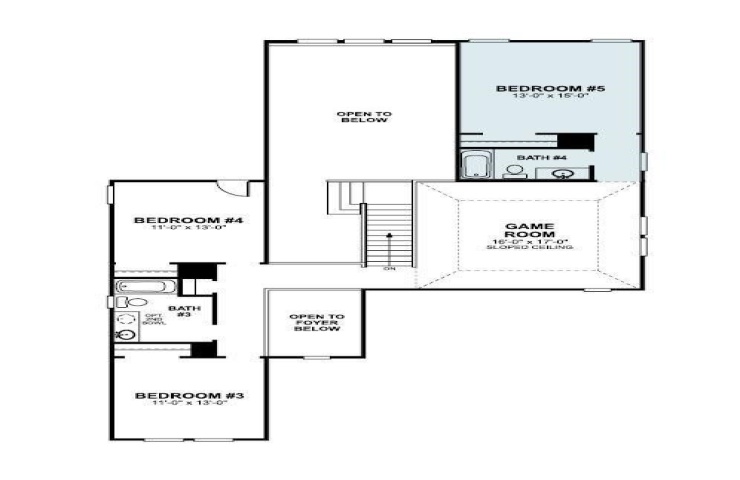
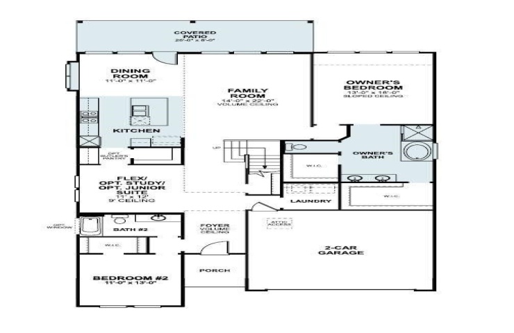
Property Description: Built by MI Homes. Discover this impressive new residence at 5305 Hybern Avenue in Aubrey, TX. This two-story home offers an expansive and grand layout that perfectly balances a busy downstairs social life with plenty of quiet space upstairs. Key Features: • 5 generous bedrooms, including a private owner’s suite located on the first floor • 4 full bathrooms finished with modern fixtures and high-quality materials • Open-concept main hub that joins the kitchen and family room for a connected feel • Brand-new construction featuring modern energy standards and high-quality craftsmanship Neighborhood & Location Benefits: • Situated in a desirable Aubrey community with a welcoming, residential vibe • Fantastic proximity to local parks and green spaces for outdoor fun and relaxation • A premier location that offers a peaceful retreat while staying close to local favorites The heart of the home is the expansive main-floor living area, where the kitchen and family room flow together for a comfortable, airy feel. While the primary suite offers a tucked-away retreat on the first level, the second story provides a dedicated floor for the additional bedrooms and bonus space. This configuration is ideal for those who want to keep the sleeping quarters separate from the active heart of the home. With its practical floorplan and move-in-ready features, this home provides a comfortable and stylish environment for your next chapter. Schedule your visit today!